理想の暮らし心地

ゾーンリノベーション
F様邸 下関市 建物65坪
| 施工期間 | 90日間 |
|---|---|
| 築年数 | 100年 |
| 建物面積 | 187.34㎡ |
お悩み・ご要望
- 冬は寒く、夏は暑い
- 和室が多く閉鎖的な間取り。
- 住設機器も老朽化しており住設機器を一新したい。
- LDKに家族みんなが集まれる大空間にしたい。
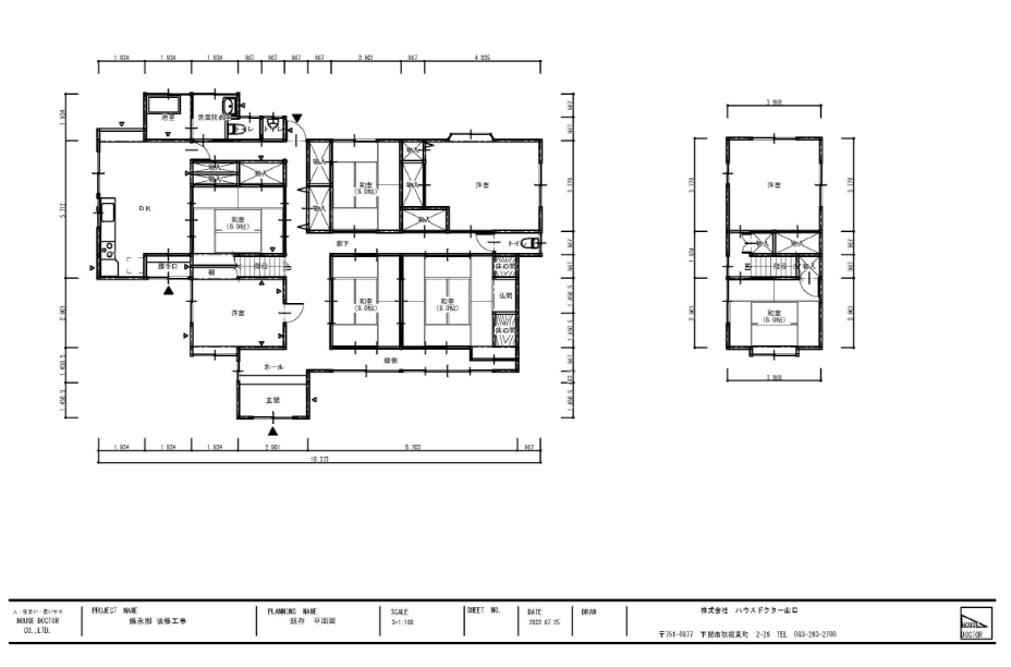
【 当時の設計図 】
プランニング

既存DKに隣接する和室や納戸を取り込み、開放的な大空間へ変貌。
熱の出入りが大きい窓は高断熱窓に取替し、
限られた予算で可能となるゾーンリノベを提案する事によって悩みを解決しました。
施工中
施工前・施工後
担当者より
お客様とはご予算の限られた中でのご相談からスタートし、家族が一番集まることが多いLDKを重視したゾーンリノベでご提案し、LDKを主軸とした同線で各水回りへの移動がし易い配置プランとさせていただきました。
築古なので夏暑く冬寒いを解決しるためにゾーンでの断熱・気密に重視し工事をさせていただきました。
完成後、お客様より快適に過ごせているとお聞きし工事に踏み切って良かったと思います。
※エアコンもLDKに2台取付したのですが、1台の稼働で快適に過ごせているとの事です!
採用した商材の一部をご紹介



























