築100年の古民家を再生

ハイスペックリノベーション
W様邸 山口市
| 施工期間 | 180日間 |
|---|---|
| 築年数 | 100年 |
お悩み・ご要望
- 冬は寒く、夏は暑い。
- 使用しない部屋は減築したい。
- 生活しやすい間取りにしたい。
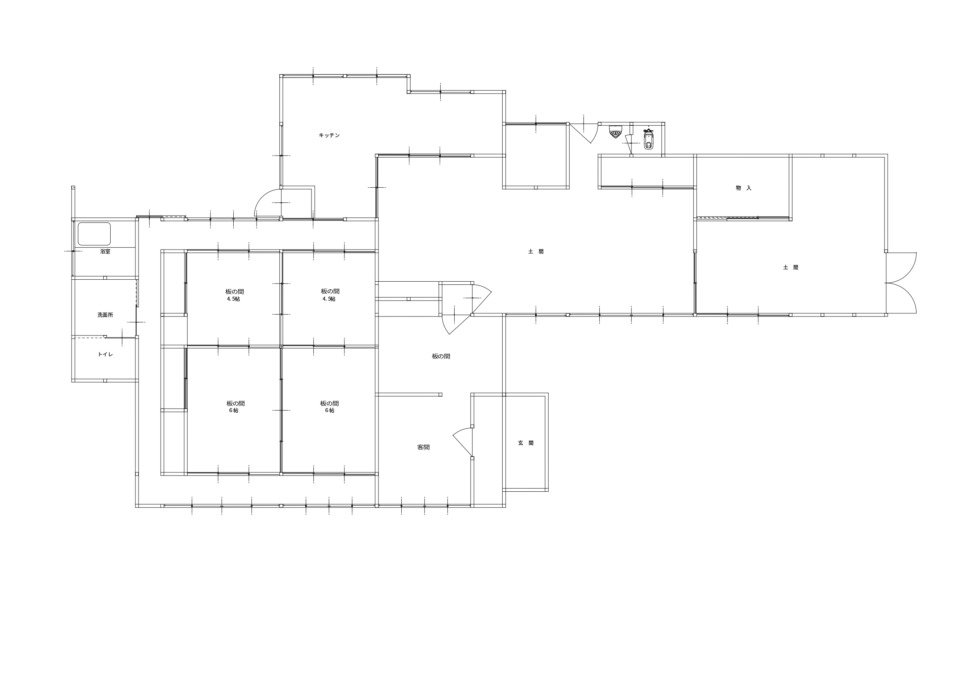
【 当時の設計図 】
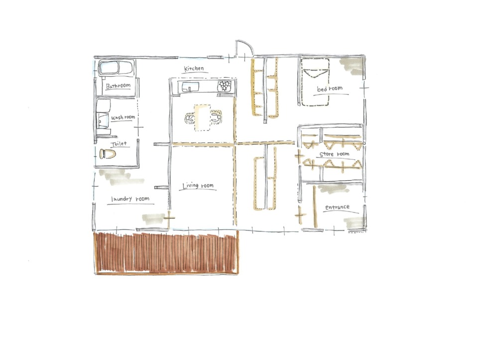
プランニング

壁・天井にはデコスファイバーを充填し、断熱性能をUP。
また、将来使用しない部屋は減築し、シアリングを何度もさせていただき、生活しやすい間取りになりました。
施工中
施工前・施工後
採用した商材の一部をご紹介

























新聞紙をリサイクルした木質繊維系多機能セルロースファイバー
セルロースファイバーとは、天然の木質繊維のこと。なぜ天然繊維が優れているのか。
その秘密は自然がつくった小さな空気の層をつくることはもちろん、1本1本の繊維の中にも自然の空気砲が存在しているのです。この空気の存在がより一層熱や音を伝えにくくします。さらに、木質繊維特有の吸放湿性で適度な湿度を保ちます。
私たちの住む日本は、夏は湿度が高く、冬は湿度の低い特有の気候風土に適した木を使った家が発展してきました。セルロースファイバーは、新聞紙をリサイクルした木材由来の断熱材です。そのため、同じ吸放湿性がある木造建築と非常に相性がよいのです。